Residenza Liberty: Arizzano – Westufer Exklusive 2½, 3- und 4-Zimmer-Wohnungen mit jeweils großzügigen Panoramaterrassen in einer neuen Residenz im Jugendstil. Traumhafter Panoramablick auf den Lago Maggiore und die umliegenden Berge. Privilegierte, ruhige und sonnige Lage leicht oberhalb von Intra. Ca. 3.600 m² großer Park mit großem Pool und Liegewiese. Fitnessraum. Aufzug. Hochwertige Ausstattung mit Feinsteinzeug- und Parkettböden, Fußbodenheizung, Kühlsystem, gepanzerte Eingangstüren, Video-Gegensprechanlage sowie Vorbereitung für eine Alarmanlage. Energieeffizienzklasse A1. Fertigstellung Sommer 2026.
Kaufpreise inklusive Keller und Garage ab € 329.000 zzgl. 10 % MwSt. (dafür entfällt die Grunderwerbsteuer) und 4,4 % Vermittlungsprovision.



























Arizzano ein kleiner, gepflegter Ort oberhalb von Intra, liegt idyllisch in den Hügeln über dem Lago Maggiore in der Provinz Verbano-Cusio-Ossola (Piemont). Die Lage verbindet den Charme einer ruhigen Wohngegend mit der Nähe zum Stadtzentrum von Verbania-Intra, das in nur wenigen Minuten erreichbar ist.
Dank der erhöhten Position genießen Besucher und Einwohner gleichermaßen einen herrlichen Panoramablick über den See und die umliegenden Berge. Die Umgebung ist geprägt von mediterraner Vegetation, eleganten Villen und liebevoll gepflegten Gärten – ein typisch italienisches Landschaftsbild voller Ruhe und Schönheit.
Arizzano ist ideal für alle, die Erholung und Natur suchen, ohne auf die Annehmlichkeiten einer Stadt verzichten zu müssen. In Intra, nur wenige Autominuten entfernt, findet man zahlreiche Geschäfte, Restaurants, Cafés und den Fährhafen, der Verbania mit dem gegenüberliegenden Ostufer des Lago Maggiore verbindet.
Zahlreiche Wander- und Spazierwege führen von Arizzano aus durch die umliegenden Hügel bis hinunter zum See. Auch Ausflüge zu den bekannten Orten Pallanza, Cannobio oder zu den Borromäischen Inseln lassen sich bequem unternehmen.
Mit seiner ruhigen Lage, der Nähe zu Verbania und dem traumhaften Ausblick bietet Arizzano eine ideale Kombination aus Natur, Komfort und italienischem Lebensgefühl – ein Ort zum Entspannen, Entdecken und Genießen.
Residenza Liberty: Modernes Wohnen im Jugendstil mit Pool und Panoramablick:
In privilegierter Lage leicht oberhalb vom See in Arizzano entsteht mit der Residenza Liberty ein exklusives Neubauprojekt, das modernes Design, mediterranen Charme und höchsten Wohnkomfort vereint. Die stilvoll gestalteten 2½, 3- und 4-Zimmer-Wohnungen beeindrucken durch großzügige Grundrisse, lichtdurchflutete Räume und eine hochwertige Ausstattung Diese umfasst u.a. Feinsteinzeug- und Parkettböden, Fußbodenheizung, Kühlsystem, gepanzerte Tür, Video-Gegensprechanlage und Vorbereitung für eine Alarmanlage. Energieeffizienzklasse A1 – komfortabel, sicher und energiesparend. Jede Einheit verfügt über einen Keller und eine private Garage. Die weiten Terrassen eröffnen einen traumhaften Panoramablick über Verbania, den Lago Maggiore und die umliegenden Berge – ein Ausblick, der jeden Tag zu einem besonderen Erlebnis macht. Eingebettet in die Ruhe der Natur, liegt die Jugendstilvilla dennoch nur wenige Minuten vom Zentrum von Intra (Verbania) entfernt. Restaurants, Geschäfte und öffentliche Verkehrsmittel sind bequem erreichbar. Die Residenz bietet zahlreiche Annehmlichkeiten, darunter einen großen Gemeinschaftspool mit Sonnenliegen und überdachten Pergolen, eine große Gemeinschaftsterrasse mit Sitzmöglichkeiten und Seeblick, einen modernen Fitnessraum sowie einen ca. 3.600 m² großen Park. Eine ideale Wahl für alle, die modernen Wohnkomfort, Natur und die Nähe zum Lago Maggiore verbinden möchten. Die Fertigstellung ist für Sommer 2026 geplant.
Appartamento Belvedere: Elegante 2½-Zimmer-Wohnung im 1. Stock (Nr. 7)
Die moderne 2½-Zimmer-Wohnung mit ca. 60 m² Wohnfläche besticht durch ihre ruhige, sonnige Lage und den traumhaften Panoramablick auf den Lago Maggiore sowie die umliegenden Berge. Die Wohnung besteht aus einem hellen Wohn-/ Essbereich mit Traumseesicht und direktem Zugang zur großzügigen Sonnenterrasse, einer offenen Küche, einem geräumigen Schlafzimmer mit Seesicht sowie einem eleganten Badezimmer, das an das Schlafzimmer angrenzt.
Die 30 m² große Terrasse lädt zum Entspannen und Genießen der Aussicht ein – ideal für Sonnenstunden mit Blick auf den See. Von hier aus eröffnet sich ein einmaliger Panoramablick, der sich über den gesamten Lago Maggiore bis hin zum anderen Ufer und den umliegenden Bergen erstreckt – man fühlt sich, als würde man über dem See thronen wie ein Adler.
Der Verkaufspreis inkl. Garage und Keller liegt bei 329.000 € zzgl. 10 % MwSt. (keine Grunderwerbsteuer) und 4,4 % Vermittlungsprovision
Appartamento Acqua e Sole: Großzügige 3-Zimmer-Wohnung im dritten Stockwerk (Nr. 17)
Diese moderne 3-Zimmer-Wohnung mit ca. 75 m² Wohnfläche besticht durch ihre ruhige, sonnige Lage und den beeindruckenden Panoramablick auf den Lago Maggiore sowie die umliegenden Berge. Sie befindet sich im dritten Stock und ist bequem mit dem Aufzug erreichbar. Vom Eingangsbereich gelangt man in den lichtdurchfluteten, großzügigen Wohn-/ Essbereich mit Traumseesicht und einer Küchenzeile. Ein geräumiges Hauptschlafzimmer, ein weiteres Schlafzimmer sowie ein modernes Badezimmer, das mit hochwertigen Materialien ausgestattet ist, runden das Raumangebot ab. Drei große Panoramaterrassen mit einer Fläche von insgesamt ca. 60 m² – zwei zur Seeseite und eine nach hinten ausgerichtet – laden zum Entspannen, Sonnen und Genießen der Aussicht ein. Von hier aus eröffnet sich ein einzigartiger Blick über den gesamten Lago Maggiore bis hin zum gegenüberliegenden Ufer – man fühlt sich, als würde man hoch über dem See thronen wie ein Adler.
Der Verkaufspreis inkl. Garage liegt bei 420.000 € zzgl. 10 % MwSt. (keine Grunderwerbsteuer) und 4,4 % Vermittlungsprovision
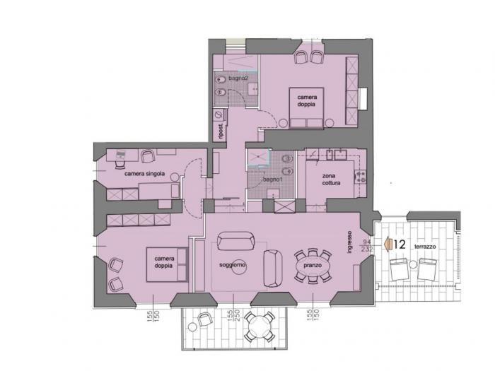
Appartamento Spazio: Weitläufige 4-Zimmer-Wohnung im zweiten Stockwerk (Nr. 12)
Die 4-Zimmer-Wohnung Nr. 12 befindet sich im zweiten Stock und ist bequem mit dem Aufzug erreichbar. Mit einer Wohnfläche von ca. 140 m² überzeugt sie durch ein durchdachtes Raumkonzept, das Eleganz, Komfort und Funktionalität harmonisch miteinander verbindet. Vom Eingangsbereich gelangt man in das großzügige, lichtdurchflutete Wohnzimmer mit herrlichem Seeblick, das sich ideal für gesellige Abende mit Familie und Freunden eignet. Die separate Wohnküche bietet reichlich Platz für kulinarische Entfaltung. Der Schlafbereich umfasst drei komfortable Zimmer – zwei Doppelzimmer, eines davon mit direktem Seeblick, sowie ein Einzelzimmer. Durch ihre Größe und Aufteilung bieten sie maximale Privatsphäre und Erholung. Die zwei stilvoll gestalteten Badezimmer (jeweils mit Bidet) sind mit hochwertigen Materialien ausgestattet und schaffen eine Atmosphäre von Wohlbefinden und Eleganz.
Ein praktischer Abstellraum sowie eine großzügige Panoramaterrasse von ca. 25 m², die zum Entspannen, Speisen im Freien und zum Genießen des spektakulären Panoramablicks über den Lago Maggiore einlädt, runden dieses außergewöhnliche Wohnangebot perfekt ab. Von hier aus eröffnet sich ein einzigartiger Blick über den Lago Maggiore bis hin zum gegenüberliegenden Ufer – man fühlt sich, als würde man hoch über dem See thronen wie ein Adler.
Der Verkaufspreis inkl. Garage liegt bei 735.000 € zzgl. 10 % MwSt. (keine Grunderwerbsteuer) und 4,4 % Vermittlungsprovision
Lage: Arizzano
Arizzano liegt am Sonnenhang von Verbania, nur ca. 5 km vom See entfernt. Ein weitverzweigtes Netz von Spazier- und Wanderwegen überzieht die Gegend und ein reichhaltiges Angebot von Kultur, Freizeit und Sportangeboten läßt keine Langeweile aufkommen.
Ganz in der Nähe befinden sich die renommierten Ferienorte Intra und Pallanza: Bekannt von Intra sind der Markt und die traumhaft schöne Altstadt. Von Intra aus können Sie übrigens mit der Autofähre auf die andere Seeuferseite nach Laveno übersetzen. Pallanza ist romanischen Ursprungs und bietet eine sehr schöne lange Seeuferpromenade mit einladenden Restaurants, Cafès und Geschäften. Auf einem 20 ha großen Areal liegen die Botanischen Gärten der "Villa Taranto" mit mehr als 20.000 Pflanzenarten mit größten Seltenheiten aus allen Erdteilen.
Die international renommierten Ferienorte bzw. -gebiete wie Ascona, Locarno, Baveno und Stresa, die Borromäischen Inseln, der Lago di Mergozzo und der Ortasee sind bis zu 30 Autominuten entfernt.