Yachting Lavena: Lavena Ponte Tresa am Luganer See: Seenah Luxuriöse 140 m² große 4-Zimmer-Wohnung im 1 OG. in einem Resort, ruhige und sonnige Lage ca. 300 vom See entfernt. Großes Wohn-/ Esszimmer, Einbauküche, 3 Schlafzimmer, 2 Bäder, 100 m² Terrasse mit einmaligem See, Berg und Palmenblick. Fußbodenheizung und Klimaanlage. Ca. 1.500 m² großes Palmengarten-Grundstück mit Pool sowie Liegebereich und Kinderpool. Exklusive Lage. Aufzug + Garage. Auf Wunsch mit modernem Wellnessbereich auf 450 m² mit Sauna, Jacuzzi, türkischem Bad, Spa und Fitnessraum. Ein Bootsplatz in der privaten Marina kann ebenfalls erworben werden.
Verkaufspreis inklusive Möblierung: €1.000.000,-+3,5% Vermittlungsprovision.


















Lavena di Ponte Tresa (ca. 6.000 Einwohner):
Lavena Ponte Tresa ist ein malerischer Ort im äußersten Norden der italienischen Region Lombardei, in der Provinz Varese, direkt an der Schweizer Grenze. Gelegen am Ufer des Luganer Sees, gegenüber dem gleichnamigen Ort in der Schweiz, vereint dieser charmante Grenzort italienisches Dolce Vita mit internationalem Flair. Dank seiner besonderen Lage bietet Lavena Ponte Tresa eine einzigartige Mischung aus Natur, Wasser, Bergen und mediterraner Lebensart. Entlang der Seepromenade laden kleine Cafés, Restaurants und Eisdielen zum Verweilen ein, während Wochenmärkte, Geschäfte und kulturelle Angebote für Abwechslung sorgen. Der Blick über den See auf die bewaldeten Berghänge ist zu jeder Jahreszeit beeindruckend. Wer Ruhe am Seeufer mit urbaner Nähe verbinden möchte, findet in Lavena Ponte Tresa den idealen Ort – nur eine kurze Fahrt trennt den Ort vom schweizerischen Lugano Gleichzeitig ist Lavena Ponte Tresa ein beliebtes Ziel für Zweitwohnsitze und Urlauber, die Ruhe und Natur suchen, ohne auf Komfort verzichten zu müssen. In der Umgebung finden sich zahlreiche Wander- und Radwege, idyllische Buchten, sowie Ausflugsziele wie der Naturpark Campo dei Fiori oder das Valganna-Tal. Auch Wassersportler und Golfer kommen in der Region voll auf ihre Kosten. Mit seiner Mischung aus ländlicher Idylle, moderner Infrastruktur und internationaler Nähe bietet Lavena Ponte Tresa eine hervorragende Lebensqualität – sowohl für Feriengäste als auch für Menschen, die sich dauerhaft niederlassen möchten.
Yachting Laveno 4 - Zimmer-Wohnung im 1 OG:
In privilegierter Lage direkt am romantischen Luganer See, im charmanten Grenzort Lavena-Ponte Tresa, befindet sich die außergewöhnliche 4-Zimmer-Wohnung Yachting Lavena in der exklusiven Yachting Residenz – einem modernen Wohnensemble mit Resort-Charakter, das höchsten Ansprüchen gerecht wird. Die im Jahr 2016 fertiggestellte Anlage bietet nicht nur hochwertigen Wohnkomfort, sondern auch zahlreiche Annehmlichkeiten wie einen großen Gartenpool (12 x 6 m) mit Panoramablick, ein separates Kinderbecken, einen Spielplatz auf dem ca. 1.500 m² großen Palmengarten-Grundstück sowie einen 450 m² großen Wellnessbereich mit Sauna, Jacuzzi, türkischem Bad, Spa und Fitnessraum. Der Zugang zum Wellnessbereich ist über eine freiwillige Mitgliedschaft möglich (Aufnahmegebühr: € 25.000,–). Zusätzlich besteht die Möglichkeit, einen Bootsplatz in der privaten Marina über eine separate Mitgliedschaft (Aufnahmegebühr: € 40.000,–) zu erwerben.
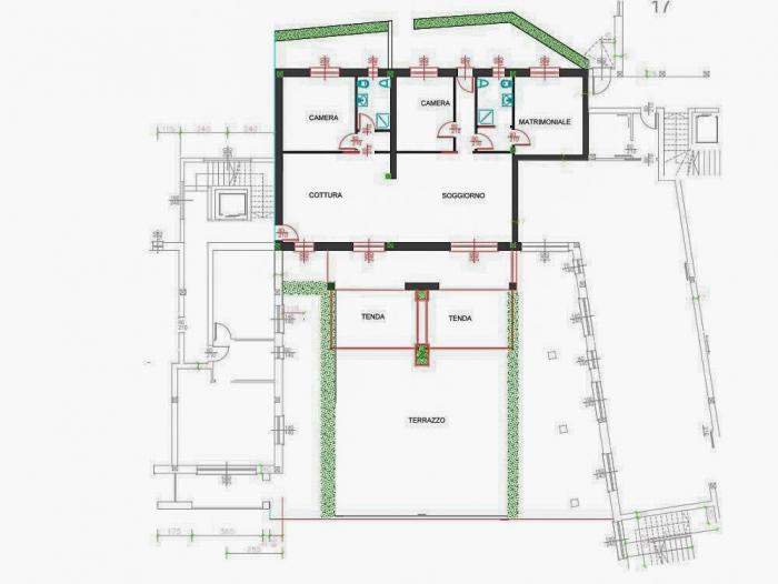
Die moderne Wohnung liegt im 1. Obergeschoss und verfügt über zwei separate Eingänge von außen – ein ideales Merkmal für Komfort und flexible Nutzung. Mit einer großzügigen Wohnfläche von ca. 140 m² besticht sie durch ein lichtdurchflutetes Wohnzimmer mit direktem Zugang zur spektakulären, rund 100 m² großen Terrasse, die einen traumhaften Blick auf den See, die umliegenden Berge und den Palmengarten bietet. Die moderne, offene Einbauküche mit Backofen, Geschirrspüler und großem Esstisch fügt sich harmonisch in den Wohnbereich ein und schafft eine einladende, kommunikative Atmosphäre. Insgesamt stehen drei Schlafzimmer sowie zwei stilvoll gestaltete Tageslichtbäder mit Dusche und Fenster zur Verfügung.
Die hochwertige Ausstattung umfasst marmorierte Porzellanfliesen, polierte Glastüren, eine Fußbodenheizung, Klimaanlage sowie doppelverglaste PVC-Fenster. Die Wohnung ist Barriere freundlich konzipiert und auch für Menschen mit eingeschränkter Mobilität geeignet. Die Zentralheizung wird über eine effiziente Wärmepumpe betrieben und durch eine Photovoltaikanlage unterstützt, was zur hervorragenden Energieeffizienz beiträgt (Energieklasse A+).
Die jährlichen Nebenkosten belaufen sich auf ca. € 5.000,– und decken den Verbrauch von Wasser, Heizung, Kühlung sowie die Reinigung und Wartung der Gemeinschafts- und Poolanlagen, die Versicherung der Eigentumswohnung und die Verwaltung ab. Ein Garagenstellplatz ist im Kaufpreis inbegriffen.
Der Verkaufspreis der Wohnung inklusive hochwertiger Möblierung beträgt € 1.000.000,– zzgl. 3,5 % Vermittlungsprovision. Die Wohnung erwirtschaftet aktuell rund € 50.000,– pro Jahr als Ferienobjekt und bietet damit eine einzigartige Gelegenheit für Kapitalanleger, die Wert auf stilvolles Wohnen mit mediterranem Flair in bester Lage legen.
Diese Immobilie vereint exklusiven Wohnkomfort, atemberaubende Naturkulisse und erstklassige Freizeitmöglichkeiten – ideal als stilvoller Erst- oder Zweitwohnsitz für Menschen mit Sinn für Qualität, Ruhe und das Leben am Wasser.
Wohnung mit Stil, Licht und Weitblick
Die Wohnung befindet sich im 1. Obergeschoss (mit Aufzug) und verfügt über zwei separate Eingänge von außen – ideal für Komfort, Flexibilität oder Gästebereich.
Die Raumaufteilung im Überblick:
- Großzügiges, lichtdurchflutetes Wohnzimmer mit Ausgang auf die spektakuläre Terrasse
- Moderne, helle Einbauküche mit Backofen, Geschirrspüler und großem Esstisch – ideal für geselliges Kochen und Genießen
- Eine ca. 100 m² große, teils überdachte Terrasse mit herrlichem Panoramablick auf den See, die umliegenden Berge und den gepflegten Palmengarten
- Schlafzimmer
- 2. Schlafzimmer
- 3. Schlafzimmer
- Elegantes Tageslichtbad mit Duschkabinen und Fenstern
- 2. Modernes Tageslichtbad mit Duschkabinen und Fenstern
- Hochwertige Ausstattung: marmorierte Porzellanfliesen, polierte Glastüren, Fußbodenheizung, Klimaanlage
- Garagenstellplatz
Außenanlagen & Gemeinschaftsbereiche – Leben wie im Paradies
Die Residenz bietet ein exklusives Angebot an Freizeit- und Wellnessmöglichkeiten:
- Gartenpool (12 × 6 m) mit See- und Bergblick, Sonnenliegen und Sonnenschirmen
- Kinderbecken und ein kleiner Spielplatz auf dem ca. 1.500 m² großen Palmengarten-Grundstück
- Wellnessbereich (450 m²) mit Sauna, Jacuzzi, türkischem Bad, Spa und Fitnessraum
- Zugang über Mitgliedschaft möglich (Aufnahmegebühr: € 25.000, –, nicht obligatorisch)
- Optionaler Bootsplatz in der privaten Marina – ebenfalls über Mitgliedschaft (Aufnahmegebühr: € 40.000, –)
- Die Kosten für die Eigentumswohnung umfassen den Verbrauch von Wasser, Heizung, Kühlung, Reinigung und Wartung der Gemeinschafts- und Poolteile, die Eigentumswohnungsversicherung und die Verwaltung.
Verkaufspreis inkl. Einbauküche, Möblierung, Keller und Garage:
€ 1.000.000,- + 4 % Vermittlungsprovision
Lago Reisen – Ihr Schlüssel zur erfolgreichen Ferienvermietung
Im Folgenden erfahren Sie, wie wir das volle Potenzial Ihrer Ferienimmobilie für Sie ausschöpfen. Als Eigentümer haben Sie selbstverständlich das letzte Wort, wenn es um Ihre Immobilie geht. Gleichzeitig verfolgen wir bei Lago Reisen das gleiche Ziel wie Sie: eine bestmögliche Auslastung, optimale Mieteinnahmen und die Gewinnung zufriedener (Stamm-) Mieter – ohne Arbeitsaufwand und ohne Kosten für Sie. Unsere Vergütung ist rein leistungsbasiert und wird vom Mieter gezahlt. Es gibt also keine Interessenkonflikte, sondern nur einen gemeinsamen Anreiz: maximalen Vermietungserfolg – für Sie und damit auch für uns. Je nach Objekt erzielen wir einen Mietrenditezinssatz von bis zu 7 % pro Saison – auf Wunsch auch mit Mietgarantie!
Wenn Sie sich, wie die meisten unserer Vermieter, für die normale Ferienvermietung ohne Mietgarantie entscheiden, können Sie alle Parameter selbst festlegen: Mietpreise, Vermietungszeiträume, Eigenbedarfstermine etc.
Warum Lago Reisen?
Lago Reisen ist ein Familienunternehmen, in dem mittlerweile drei Generationen zusammenarbeiten, welches sich seit dem Jahr 1998 auf die erfolgreiche Vermittlung von Ferienimmobilien spezialisiert hat.
- All-in-One-Service für Eigentümer: Wir übernehmen die komplette Vermietungsabwicklung - von der Inseratserstellung bis zur Buchung, inklusive Gästekommunikation. Auf Wunsch organisieren wir die gesamte Abwicklung vor Ort, also Schlüsselübergabe, Endreinigung etc. Diese Leistungen sind für Sie selbstverständlich kostenfrei, da sie vom Mieter getragen werden.
- Maximale Reichweite: Präsenz auf über 100 internationalen Buchungsplattformen wie Atraveo, Booking, Casamundo, Check24, E-Domizil, Expedia, FeWo-direkt, Holidu, HomeToGo, etc.
- Sehr hohe Auslastungsquoten: Unsere Belegungsraten sind seit Jahren überdurchschnittlich.
- Zuverlässige, wiederkehrende Mieter: Viele unserer Kunden reisen seit Jahren mit Lago Reisen – unsere Stammmieterquote beträgt mittlerweile beachtliche 15 %.
- Professionelle Objektpräsentation: Wir erstellen nach Besichtigung ein hochwertiges Exposé mit professionellen Fotos und zielgerichteter Preisstrategie.
Zusätzlich ermöglichen wir:
- Individuelle Abrechnungsmöglichkeiten für Vermieter
- Automatisierte Gästekommunikation inklusive Check-in-Anleitungen
- Auf Wunsch: Schlüsselmanagement, Reinigungsplanung, Bewertungseinholung
- Multilinguale Gästeansprache – ideal für den internationalen Tourismus
- Exklusivvermittlung = klare Prozesse & keine Doppelbuchungen
- Rechtssichere Vertragsgestaltung & professioneller Zahlungsfluss – auch für Eigentümer ohne Erfahrung in der Kurzzeitvermietung
- Flexibles Eigennutzungsmodell ohne Ausfallentschädigung – ideal für Zweitwohnungsbesitzer
- Persönliche Ansprechpartner – kein Callcenter, sondern direkte Betreuung
- Steuerliche Informationen: Wir sind zwar keine Steuerberater – doch durch jahrzehntelange Erfahrung und unsere tägliche Praxis kennen wir die typischen steuerlichen Fragestellungen von Eigentümern und verfügen über fundierte, praxisnahe und aktuelle Erkenntnisse.
- Leistungsabhängige Provision – kein Fixhonorar, kein Risiko für Eigentümer
- Flexible Vertragslaufzeit (jährlich kündbar) – ideal für einen Einstieg ohne langfristige Bindung
Für bestimmte Aufgaben (z. B. Check-in/Check-out, Schlüsselübergabe, Endreinigung, Koordination von Ersatzbeschaffungen, Zustandskontrolle nach Abreise) sind die Schlüsselübergabestellen vor Ort zuständig. Wir verfügen über zahlreiche Kontakte.
Alternativ können Eigentümer, die selbst vor Ort sind, diese Aufgaben übernehmen – in dem Fall erhalten Sie die Endreinigungspauschale sowie alle vom Mieter gebuchten Zusatzleistungen.
Weitere Informationen für Vermieter:
Transparente Mietverträge & Kommunikation
Sie erhalten jeden abgeschlossenen Mietvertrag zur Einsicht. Bei Rückfragen stehen wir Ihnen persönlich zur Verfügung.
Mietpreise & Provision
Die Mietpreise legen wir gemeinsam fest – basierend auf unserer Marktkenntnis, Objektlage und Auslastungszielen. Unsere Provision inklusive Mehrwertsteuer beträgt 20 % vom reinen Mietpreis (also nicht vom Gesamtpreis) und wird direkt über die Anzahlung des Mieters abgewickelt. Sie entscheiden, ob Sie Ihren Mietanteil einen Monat vor Mietbeginn per Banküberweisung erhalten möchten oder lieber erst am Anreisetag.
Steuerliche Vorteile
Auf Mieteinnahmen, die Sie durch eine Ferienvermietung in Italien generieren, zahlen Sie in Deutschland aufgrund des Doppelbesteuerungsabkommens mit Italien keine Steuern. Seit 2009 unterliegen diese Einnahmen in Deutschland auch nicht mehr dem Progressionsvorbehalt. In Italien beträgt die Vermietungssteuer lediglich 21 % (Flatrate). Im Gegensatz zu Deutschland gelten Sie in Italien nicht bereits mit der ersten Ferienwohnung als unternehmerischer Vermieter, sondern erst ab fünf vermieteten Objekten. Dadurch fällt für Sie als Vermieter auch keine Mehrwertsteuer an.
Lago Reisen – Ihr Erfolg ist unser Antrieb
Mit unserer Erfahrung, Reichweite und Professionalität sind wir die klare Nummer 1 für die Ferienvermietung am Lago Maggiore. Wer an den Lago möchte, kommt an Lago Reisen nicht vorbei. Wir freuen uns auf eine erfolgreiche Zusammenarbeit mit Ihnen!
Für Rückfragen stehen wir jederzeit gerne zur Verfügung.